
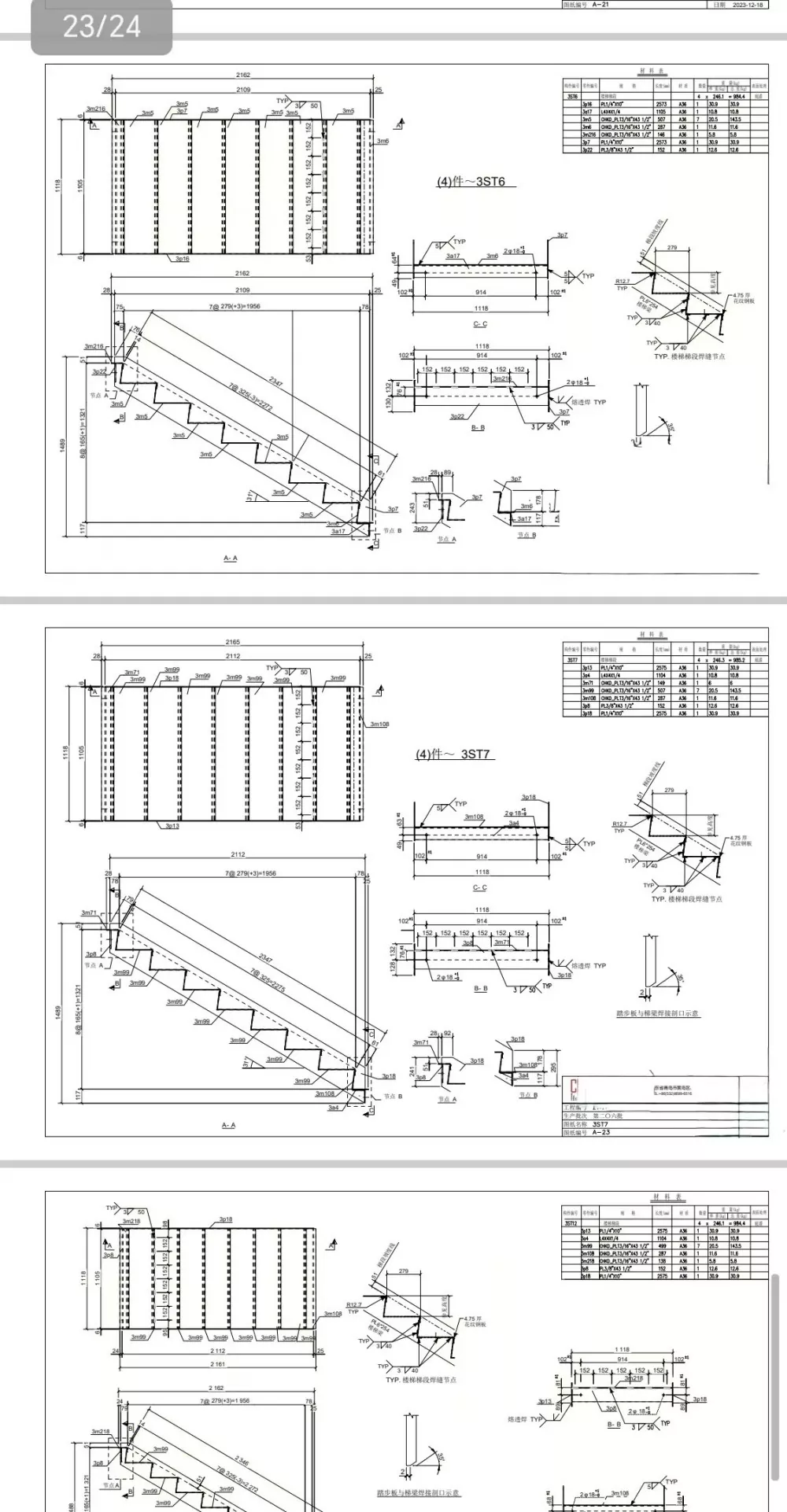
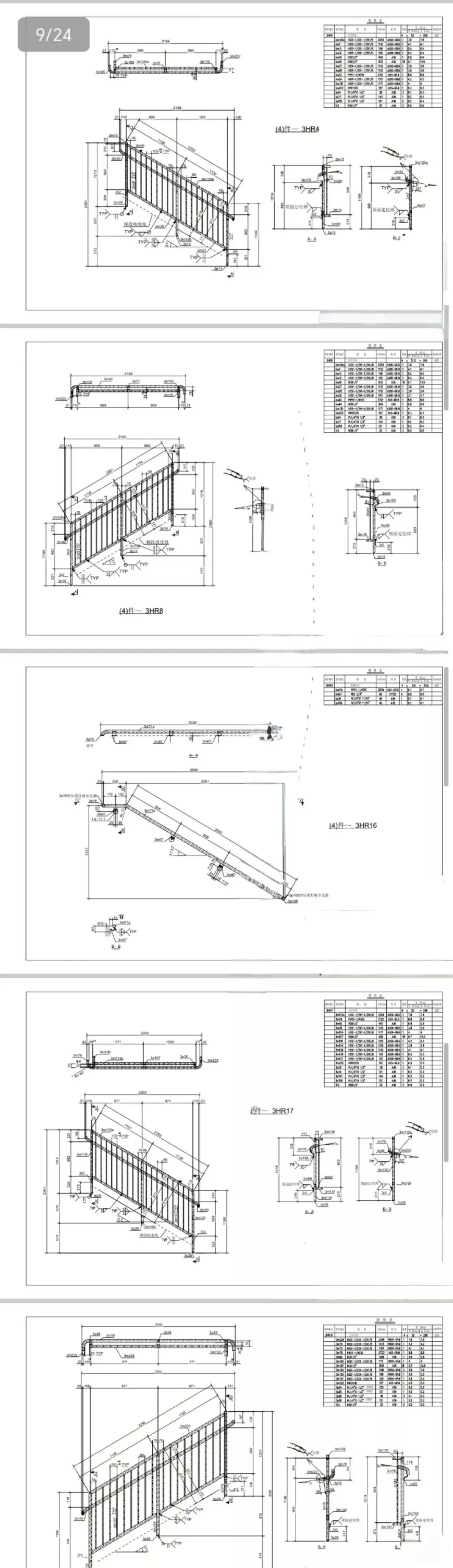
A Liweiyuan acélszerkezetének lépcsője elsősorban csatornacélból és acéllemezekből készül, vágási és hegesztési technikákkal. Termékeink minimális támogatási pontokkal és nagy terhelésű kapacitással rendelkeznek. Különböző lépcsőstílusokat kínálunk, és az Ön igényei szerint testreszabhatjuk őket. Nyugodtan vásároljon!
A Liweiyuan acélszerkezetének lépcsője elsősorban csatornacélból és acéllemezekből készül, vágási és hegesztési technikákkal. Termékeink minimális támogatási pontokkal és nagy terhelésű kapacitással rendelkeznek. Különböző lépcsőstílusokat kínálunk, és az Ön igényei szerint testreszabhatjuk őket. Nyugodtan vásároljon!



A Liweiyuan acélszerkezetének lépcsőjét elsősorban sokemeletes épületekben, ipari növényekben és más területeken használják. Termékeink kiváló minőségű alapanyagokból készülnek, minden folyamatot szigorúan működtetnek, és minden termék minőségi ellenőrzésen megy keresztül, mielőtt azt Önnek átadják.
1. Termékünk viszonylag kevés helyet foglal el, és úgy tervezhető, hogy illeszkedjen a helyéhez, megkönnyítve a telepítést.
2. Ez gazdasági és költséghatékony. A beton lépcsőkhöz képest a lépcsőink gyorsabbak és könnyebben telepíthetők és felépíthetők, kevesebb zsaluzatot igényelnek, és csak felére kerülnek.
3. Különféle mintákat kínálunk a környezetének és a kívánt stílusnak megfelelően.
4. Nagyon praktikusak vagyunk. Az acélszerkezeti lépcsők futófelületei olyan anyagokból készülhetnek, mint a mintás acéllemezek és acélrácsok, és testreszabhatók a különböző forgalmi mintákhoz, megkönnyítve a lépcsőn felfelé és lefelé.

5. A lépcsőink testreszabhatóak, korrózióálló kezelésekkel, például forró horganyzással, műanyag permetezéssel és festéssel. Testreszabhatók az egyéni ügyfelek igényeinek kielégítésére is. Különféle anyagokat kínálunk, beleértve az A36, Q235B és Q355B -t.


A Liweiyuan egy professzionális fémmegmunkáló gyár Kínában, fejlett fémmegmunkáló berendezésekkel, magasan képzett műszaki csapattal és profi technikusokkal felszerelt. Adjon hozzá egyedi érintést az épületéhez a Liweiyuan acél lépcsők kiválasztásával!