
Az acélszerkezetű ereszcsatornák az épület tetővízelvezető rendszerének kulcsfontosságú elemei. Elsődleges feladatuk, hogy összegyűjtsék a tetőről a csapadékvizet, függőleges csövekbe irányítsák, majd a kültéri vízelvezető rendszerbe vezessék, megakadályozva, hogy közvetlenül a falakat erodálja, vagy beázza az alapokat. A Liweiyuan terméktervezését és beépítését nagy szilárdság és könnyű súly jellemzi, amely biztosítja a sima vízelvezetést és a kivételes tartósságot.
Az acélszerkezetű ereszcsatornák az épület tetővízelvezető rendszerének kulcsfontosságú elemei. Elsődleges feladatuk, hogy összegyűjtsék a tetőről a csapadékvizet, függőleges csövekbe irányítsák, majd a kültéri vízelvezető rendszerbe vezessék, megakadályozva, hogy közvetlenül a falakat erodálja, vagy beázza az alapokat. A Liweiyuan terméktervezését és beépítését nagy szilárdság és könnyű súly jellemzi, amely biztosítja a sima vízelvezetést és a kivételes tartósságot.
A Liweiyuan acélszerkezetű ereszcsatornája korrózió- és ütésálló anyagokból készül.
Termékünk tűzihorganyzott, kiváló korrózióállóságot, alacsony költséget és hosszú élettartamot kínál. 1,5-2,5 mm vastagságban kapható, így a legtöbb alkalmazáshoz alkalmas.
A rozsdamentes acélból készült termék korrózióálló, és különösen alkalmas part menti vagy nedves környezetben. 1,0-2,0 mm vastagságban kapható, magasabb árat, de hosszú élettartamot kínál.
Színes bevonatú acéltermékeink horganyzott acél alapúak, időjárásálló bevonattal, például poliészterrel vagy fluorkarbonral bevonva, mind a korrózióállóság, mind a dekoratív hatás érdekében. 1,2-2,0 mm vastagságban kaphatók, így olyan épületekhez alkalmasak, amelyek magas szintű esztétikai megjelenést igényelnek.
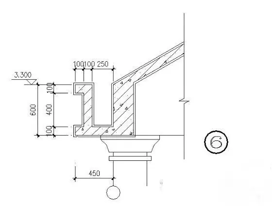
Az acélszerkezetű ereszcsatorna szerkezeti formáját a tető lejtéséhez és az eresz kialakításához kell igazítani. A gyakori típusok közé tartozik az U-alakú és a V-alakú. A telepítés folyamata a következő:
Acélszerkezetű ereszcsatornáink szögletes acél ereszcsatorna-tartókat használnak, hogy rögzítsék őket az acélszerkezet ereszgerendáihoz vagy szelemenjeihez. A konzolok távolsága 600-1000 mm, hogy egyenletes feszültségeloszlást biztosítson az ereszcsatornában.
A kész ereszcsatornákat előre méretezzük és a helyszínen összekötjük csatlakozókkal vagy hegesztéssel. Tömítőanyagra van szükség az ereszcsatorna és a tetőburkolat találkozásánál.
A tetődeszka fölé lamellát is beépíthetünk. Az ereszcsatorna alsó végét a tetőburkolat alá kell helyezni, és tömítőanyaggal le kell zárni. Az ereszcsatorna alján leeresztő lyukakat kell kialakítani, elsősorban az esővíz felszálló vezetékekhez való csatlakoztatáshoz.
Acélszerkezetű ereszcsatornák gyártási folyamata magában foglalja a rajz méreteinek megfelelő vágást, hajlítást, festést, késztermék ellenőrzést, csomagolást és szállítást. A Liweiyuan acélszerkezetű ereszcsatornáit úgy tervezték és szerelték be, hogy biztosítsák a korrózióállóságot, a sima vízelvezetést és a tartósságot, biztosítva a hatékony vízelvezetést.